


Hope’s Property
So grateful to the Lord for blessing us with the property on Overton Road. As I write this, we are preparing a worship night in the Community Room on Thanksgiving weekend. Each week the facility is currently being used for offices, HopeYouth, several Bible studies, and men’s and women’s events.
In addition to our outdoor Christmas Eve service at Riverfront park, we will be having a smaller 10:00 a.m. Sunday service on Christmas Day at the property.
Of course, the question on many minds is: “When will we be able to build what we need for space to host Sunday services regularly on the property?”
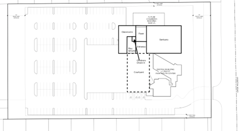
Our plan for this first phase is to add about 14,000 sq. ft. to the current facilities (8,000 sq. ft. for the worship center and 6,000 sq. ft . for HopeKids classes). We estimate the budget for the property to be around 3.2 million dollars. The elders are hoping to see about 70% of that raised before we start construction (which is around 2.2 million). Currently we have around 1.1 million raised. So, we are praying and hoping God will provide and lead some to give towards the 1 million we need to feel comfortable getting started.
Jim Luckow (520-256-3070) is heading up the construction side of things and Chuck Martin (520-990-1352) is available for any financial discussions you might want to have. This sketch represents a preliminary idea of how the buildings might be situated.
In the meantime, let us stay faithful to offer Hope, grow in Community, and be the Church.
~Pastor Randy


Please join us Sunday, December 18 at 10:00 at Wilson as the HopeDrama Team will be performing our first Christmas play at Hope! Feel free to invite family and friends. There will be no HopeKids that day, but there will be a space set up outside for viewing the play on a screen if that suits your family’s needs better. We look forward to putting on a great performance for you all while honoring our Lord Jesus this Christmas Season!

Christmas Eve Candlelight Service
@ Riverfront Park Amphitheater (551 W. Lambert Lane)
5:30 to7:00 p.m.
Please bring your own chair or blanket and make sure to dress warmly.

Christmas Day Service
in the Community Room
@10:00 a.m.
Join in on our simple gathering singing the familiar "Carols of Christmas". Hear the Scriptures and meditate/think with us about our Savior Jesus and His birth. We will be all together in the Community Room..so come as you are and please bring your children/grandchildren/neighbors kids, etc. too!

Women's Ministry
Suzi King, Director
sking@hopetucson.com

You are invited to our annual Women’s Christmas Outreach for the residents at the Casa Paloma Women’s Shelter - December 10 from 9:30 to 11:30 a.m. in the Community Room.
Included below is a list of requested items from the residents at the Shelter.
• Slippers
• Beanies
• Gloves
• Socks
• Adult coloring books
• Colored pencils
• Earrings
• Mascara
• Eye Shadow
• Blush
In addition, we will be putting small cookie/treat plates together for the residents of the shelter and walk in guests. All items must be store bought and individually wrapped. (Werther's candy, Lindor Truffles, Ghirardelli chocolates, shortbread cookies, etc.)
If you are unable to attend, we will be receiving items at the office (3130 W. Overton Road), during the following days: Monday - Thursday, December 5th - 8th (8:30 a.m. to 4:30 p.m.) & Friday, December 9th (8:30 to noon).
Thank you in advance for your participation!
Women’s Ministry Team


Thank you to everyone who came out and supported our Christmas Craft sale on November 28 to benefit a Hope woman in missions! We will still have crafts available to purchase this Sunday, December 4 as well. They make great Christmas presents! We want to especially thank Angela Brainard, Gwena Burns and Faith Mathews for all their hard work in making this sale happen!

Thank you Hope!! We collected 260 Christmas boxes this year for OCC. Your boxes will bless hundreds of kids around the world! Also, a big thank you to Tammi Moore and her team for heading up the OCC table this year!

Dave Collins, Church Plant Pastor
Hi Hope,
I can't thank you enough for your ongoing support of Ambassadors Church. I feel like we have had the best start we could have asked for. All glory to God! AND, thank you, Hope Community Church for partnering with us at such an amazing level.
You have been openhanded with people and money and time and resources and we are so grateful! I truly believe God will bless you for your generosity and faith. We are excited to continue to partner with Hope in the future in different ways as sister churches!
Lord willing, both Hope Community Church and Ambassadors Church will be used by the Lord to expand His Kingdom for generations to come. I picture both churches making disciples who make disciples, preaching the Word of God, and planting more churches for the glory of God!
Thank you, thank you, thank you! And may God bless you all as you continue to follow Jesus and help others to follow Him too!
~Pastor Dave

Our next baptism is Sunday, December 4 following service. Interested in being baptized contact Gina at info@hopetucson.com.


Skipper Vereen, HopeKids Intern
svereen@hopetucson.com
Hello, Hope!
We wish you all a happy Christmas filled with joy and cocoa.
We have created a mobile HopeKids resource wall with lots of information, like books recommended by people in the church, playlists of songs, and a list of people who would like to babysit. This will be located near the check-in table.
Have lots of fun during this joyful season.
And as always, please reach out if you have any questions or need support in any way.
May you walk in step with Christ in all you do!
~Skipper



December 4 (Family Sunday): Jesus Was Questioned, Matthew 22, Mark 12, Luke 20
December 11: Last Supper, Matthew 26, Mark 14, Luke 22, John 13
December 18: No HopeKids
December 25: No HopeKids (Merry Christmas)

December Birthdays:
Amelia Walker 12/1/16
Emily Morell 12/5/16
Kerrigan Smead 12/5/13
Sage DeVries 12/6/16
Arabella Walker 12/8/13
Taitum Hunt 12/9/16
Cora Brown 12/11/20
Noelle Brown 12/11/20
Harper Nagy 12/12/16
Rory Caffarel 12/13/16
Brigitta Bellars 12/13/14
Cadence McCabe 12/17/17
Bella Cross 12/22/15
Lachlan Henderson 12/22/21
Emmy Frambaugh 12/23/11
Wynter Whiting 12/25/11
Molly Collins 12/29/14





Kevin Mason, Associate & Youth Pastor
kmason@hopetucson.com

One of our Core Values at Hope is “Grow in Community.” We must never give up meeting and being a part of the Body of Christ. It is vital that each of us stays connected to the Head by really embracing the Body of Christ. We are praying for each of you!

Our vision in Men’s Ministry is to train and build up men in godly masculinity. We desire all men at Hope to be rooted in a Biblical identity and to embrace their role as leaders in the Kingdom. Please look for emails about how you can get connected in 2023.
Important Dates:
Core 12 kick off Retreat: January 20 - 21
Men’s Bible Studies: Starting January 2023

HopeLife welcomes all young adults at Hope Community Church. We will meet this month on the 3rd, 10th and 17th at 7:00 p.m. Contact Brenna Bumb if you are interested in attending at 520-912-6290.

This has been an interesting season for HopeYouth, but despite all the craziness, I am so thankful for our God. It is so obvious that He is working and is using all the craziness for His glory.
Also, please know that I am honored and blessed to be your Youth Pastor again. I wish it had happened differently, but I am excited to be in a position to love and point your students to Christ. Being back in the ministry I would like to communicate some needs:
1. Leaders - Please prayerfully consider leading at HopeYouth. If you have any questions please email me at
kmason@hopetucson.com.
2. Food - If you love to bake, know that our students love to eat. 😊 Every Sunday night we love to have snacks and food for students to enjoy. We would be blessed if anyone felt led to provide snacks for HopeYouth.
3. Prayer - With so much going on in our world, please pray that students would move closer to Christ.

December Calendar for Youth Group
Sundays, December 4, 11, 18 HopeYouth in the Community Room
6:00 to 8:00 p.m.
No HopeYouth on December 25
Important Dates to Remember
December 18 - Christmas Party
January 13-16 - Winter Camp at Southern Pines Baptist Camp on Mt. Lemmon


We had a blessed and fun time at our 2022 Jubilee! Thank you to the Jubilee Team and all our incredible volunteers who made this event happen!


AccessHope
Sarah Whiting, Director

Make A Joyful Noise: Join us on Friday, December 9 from 6:00 -7:00 p.m. in the Community Room, for an interactive sensory worship experience. We will provide musical tools to facilitate engagement in singing Christmas Carols together. This event will be for all our sensory seekers: louder music, lots of physical engagement, and fun interactive tools.
Night to Shine
Volunteer sign ups for Night to Shine 2023 are available. You can follow Tucson Night to Shine on Facebook for up-to-date information. We are so excited that this year we are able to host an in-person event again!

